- Immobilienkauf
- 2-Zimmer-Wohnung
- ZU VERKAUFEN – 2-Zimmer-Wohnung mit Blick auf Zobor - NITRA
ZU VERKAUFEN – 2-Zimmer-Wohnung mit Blick auf Zobor - NITRA
Alle Bilder zeigen (19 Bilder)
Die Immobilienagentur AMAXADES REALITY bietet eine 2-Zimmer-Wohnung in Nitra zum Verkauf an. Die Wohnung befindet sich im Wohnkomplex RIVIERA in der Pieskova-Straße.
Der neue Wohnkomplex liegt direkt am Radweg entlang des Flusses Nitra und in unmittelbarer Nähe zum Stadtpark. Die Wohnung ist nach Osten ausgerichtet und bietet einen schönen Blick auf den Fluss Nitra und den Zobor-Hügel. Der Wohnkomplex bietet seinen Bewohnern zudem Annehmlichkeiten wie ein gemütliches Café und einen Friseursalon.
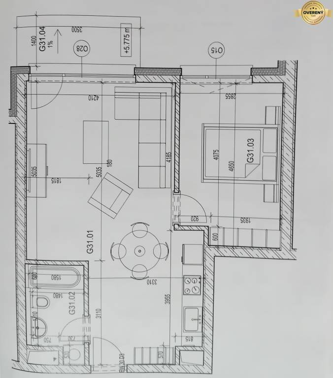
Die Wohnung befindet sich im 3. Obergeschoss. Ihre Wohnfläche beträgt 48,52 m² zuzüglich eines ca. 5 m² großen Balkons. Zur Wohnung gehören ein eigener Tiefgaragenstellplatz und ein 2,5 m² großer Kellerraum.
Die Wohnung verfügt über zwei Wohnbereiche: ein geräumiges Wohnzimmer mit Kochnische, ein separates Schlafzimmer und ein Badezimmer mit Badewanne. Vom Wohnzimmer aus gelangt man auf den Balkon.
Die Wohnung wird mit der auf den Fotos abgebildeten Ausstattung verkauft. Die Wohnung eignet sich hervorragend als Kapitalanlage mit sofortiger Vermietungsmöglichkeit!
Die monatlichen Nebenkosten betragen 130 EUR zzgl. tatsächlichem Stromverbrauch, Internet und Fernsehen.
Der Kaufpreis der Immobilie beträgt 195.000 EUR.
VEREINBARUNG MÖGLICH.
Bei Interesse an einer Besichtigung kontaktieren Sie uns bitte:
+421.911.201.211,
amaxades.reality@gmail.com
Detailangaben:
3/Obergeschoss
6
2
56 m²
51 m²
Alleinbesitz
ganz umgebaut
aktiv
separiert
optik
ja
gemeinsames - eigener Heizkessel
5 m²
2.52 m²
1 Auto
ja
eigenes/reserviertes
Gemischt
ja
nein
ja
ja
ja
Kunststoff
+421 911 201 211
Slowakei
Nitra
Nitra
Piesková
Alleinbesitz
2-Zimmer-Wohnung - Neubau
Kaufen
- 26. 1. 2026 17:46
- Anfrage senden
- Das Angebot an Email verschicken
- Ein Besichtigungstermin vereinbaren
- Das Angebot drucken
Lage auf der Karte:
Für weitere Informationen kontaktieren Sie:
AMAXADES REALITY
Immobilienmakler


Telefon: +421 911 201 211
E-mail: amaxades.reality@gmail.com
AMAXADES s.r.o.
Pivovarská 7
NITRA, SLOVAKIA,
SK-94901
Telefon: +421 911 201 211, +421.911.400.211
Mobil: +421 911 201 211, +421.911.400.211, +385.99.8431.210,
E-mail: amaxades.reality@gmail.com
Web: www.amaxades-reality.sk
























