- Immobilienkauf
- 3-Zimmer-Wohnung
- KROATIEN - Ferienwohnungen 140 m vom Strand entfernt (3i) - VODICE
KROATIEN - Ferienwohnungen 140 m vom Strand entfernt (3i) - VODICE
Alle Bilder zeigen (18 Bilder)
AX250543-3i,
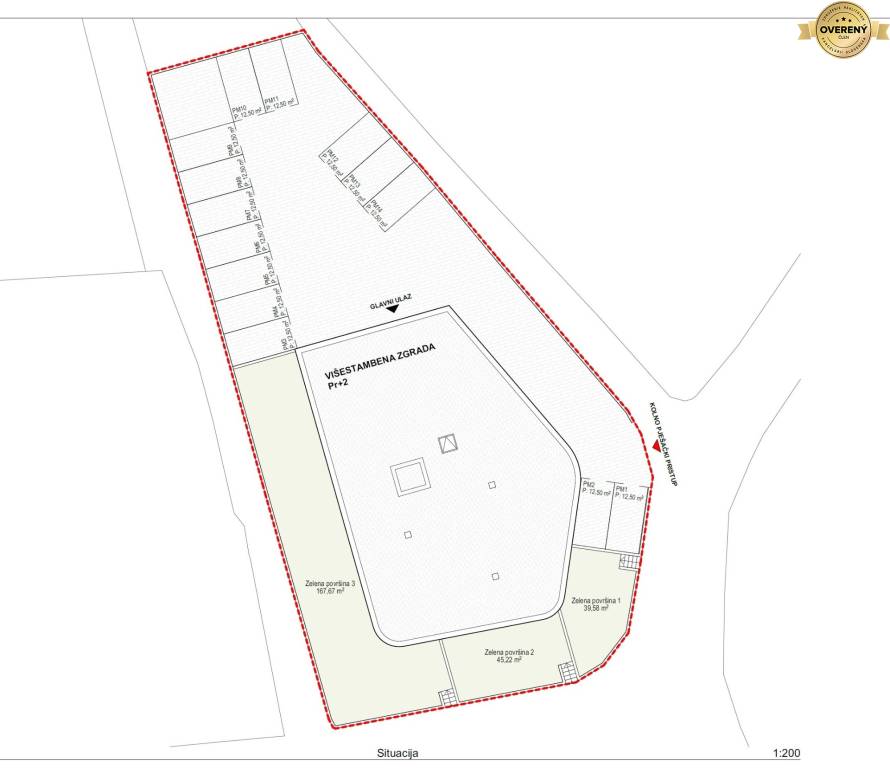
Die Immobilienagentur AMAXADES REALITY bietet Wohnungen in einem neuen Wohngebäude in Vodice zum Verkauf an. Das Gebäude befindet sich im Bau. Das Haus liegt 140 m vom beliebten Sandstrand und der Promenade mit zahlreichen Restaurants und Bars entfernt. Das Zentrum von Vodice erreichen Sie in 10 Gehminuten entlang der Promenade.
Wohnung S2 – Erdgeschoss – Wohnfläche: 59,74 m² + Terrasse: 19,57 m² + Garten: 45,22 m². Die Wohnung verfügt über einen Eingangsbereich, zwei Schlafzimmer mit Zugang zur Terrasse, einen Hauswirtschaftsraum mit WC, ein Badezimmer und ein Wohnzimmer mit Küche und Zugang zur Terrasse.
Wohnung S4 – 1. Stock – Wohnfläche: 79 m² + Terrasse: 18,52 m². Die Wohnung verfügt über einen Eingangsbereich, zwei Schlafzimmer, einen Hauswirtschaftsraum, zwei Badezimmer und ein Wohnzimmer mit Küche und Zugang zur Terrasse.
Wohnung S5 – 1. OG – Die Wohnungsfläche beträgt 59,74 m² + 19,16 m² Terrasse. Die Wohnung verfügt über einen Eingangsbereich, zwei Schlafzimmer mit Zugang zur Terrasse, einen Hauswirtschaftsraum mit WC, ein Badezimmer und ein Wohnzimmer mit Küche und Zugang zur Terrasse.
Wohnung S7 – 2. OG – Die Wohnungsfläche beträgt 79 m² + 18,52 m² Terrasse. Die Wohnung verfügt über einen Eingangsbereich, zwei Schlafzimmer, einen Hauswirtschaftsraum, zwei Badezimmer und ein Wohnzimmer mit Küche und Zugang zur Terrasse.
Wohnung S8 – 2. OG – Die Wohnungsfläche beträgt 59,74 m² + 19,16 m² Terrasse. Die Wohnung verfügt über einen Eingangsbereich, zwei Schlafzimmer mit Zugang zur Terrasse, einen Hauswirtschaftsraum mit WC, ein Badezimmer und ein Wohnzimmer mit angeschlossener Küche und Zugang zur Terrasse.
Anschlüsse: Stadtwasser, Strom, Abwasser
Die Wohnungen verfügen über Fußbodenheizung in den Badezimmern und im Wohnzimmer.
Alle Zimmer sind klimatisiert.
Das Haus verfügt über einen Aufzug.
Die kleinere Wohnung verfügt über einen, die größere über zwei Stellplätze.
Verkaufspreis Wohnung S2: 320.000,- EUR
Verkaufspreis Wohnung S4: 380.000,- EUR
Verkaufspreis Wohnung S5: 320.000,- EUR
Verkaufspreis Wohnung S7: 445.000,- EUR
Verkaufspreis Wohnung S8: 330.000,- EUR
Die Verkaufspreise verstehen sich inklusive Mehrwertsteuer. Der Käufer zahlt beim Kauf dieser Immobilie keine Grunderwerbsteuer.
Zusätzlich trägt der Käufer die Kosten für Makler- und Rechtsdienstleistungen in Höhe von 3 % des Kaufpreises, einschließlich der Erstellung der Rechtsdokumente, Übersetzungsleistungen und Notargebühren.
Bei Interesse an einer Besichtigung kontaktieren Sie uns bitte unter:
+421.911.201.211, +385.99.8431.210,
amaxades.reality@gmail.com
Detailangaben:
2
3
124.53 m²
59.74 m²
Unternehmenseigentum
aktiv
ja
ja
eigenes - elektrisch
19.57 m²
ja
Ziegel
ja
ja
nein
ja
Kunststoff
+421 911 201 211
Kroatien
Vodice
Vodice
Unternehmenseigentum
3-Zimmer-Wohnung - Neubau
Kaufen
- 12. 3. 2026 21:41
- Anfrage senden
- Das Angebot an Email verschicken
- Ein Besichtigungstermin vereinbaren
- Das Angebot drucken
Lage auf der Karte:
Für weitere Informationen kontaktieren Sie:
AMAXADES REALITY
Immobilienmakler


Telefon: +421 911 201 211
E-mail: amaxades.reality@gmail.com
AMAXADES s.r.o.
Pivovarská 7
NITRA, SLOVAKIA,
SK-94901
Telefon: +421 911 201 211, +421.911.400.211
Mobil: +421 911 201 211, +421.911.400.211, +385.99.8431.210,
E-mail: amaxades.reality@gmail.com
Web: www.amaxades-reality.sk























