- Immobilienkauf
- 3-Zimmer-Wohnung
- KROATIEN - 3-Zimmer Ferienwohnungen in Strandnähe - SUKOŠAN
KROATIEN - 3-Zimmer Ferienwohnungen in Strandnähe - SUKOŠAN
Alle Bilder zeigen (14 Bilder)
RB26-2650-59,
Das Immobilienbüro AMAXADES REALITY vermittelt den Verkauf von attraktiven Neubauwohnungen in exzellenter Lage nahe dem neu gestalteten Strand in SUKOŠAN.
Insgesamt stehen 10 Wohnungen in zwei identischen Gebäuden zum Verkauf. Jedes Gebäude verfügt über vier 3-Zimmer-Wohnungen und eine 4-Zimmer-Wohnung (S5) mit Dachterrasse. Das erste Gebäude liegt 70 m, das zweite 100 m vom Meer entfernt.
Jede Wohnung verfügt über einen Parkplatz. Wohnungen mit Dachterrasse bieten zwei Parkplätze. Fast alle Wohnungen bieten Meerblick.
Die Wohnungen zeichnen sich durch hochwertige Materialien und modernes Design aus. Sie verfügen über Fußbodenheizung und eignen sich sowohl für ganzjähriges Wohnen als auch für die touristische Vermietung.
Wohnung S1 – Erdgeschoss. Wohnfläche 61,06 m² + Terrasse 12,30 m² + Garten 48 m².
Die Wohnung verfügt über einen Eingangsbereich, zwei Schlafzimmer, ein Badezimmer mit Dusche und WC, ein separates Gäste-WC/Waschraum sowie ein Wohnzimmer mit Kochnische und ein Esszimmer mit Zugang zur Terrasse.
Wohnung S2 – Erdgeschoss. Wohnfläche 64,22 m² + Terrasse 12,80 m² + Garten 74 m².
Die Wohnung verfügt über einen Eingangsbereich, zwei Schlafzimmer, ein Badezimmer mit Dusche und WC, einen Waschraum/Hauswirtschaftsraum sowie ein Wohnzimmer mit Kochnische und ein Esszimmer mit Zugang zur Terrasse.
Wohnung S3 – 1. Obergeschoss. Wohnfläche 61,06 m² + Terrasse 10,1 m².
Die Wohnung verfügt über einen Eingangsbereich, zwei Schlafzimmer, ein Badezimmer mit Dusche und WC, ein separates Gäste-WC/Waschraum sowie ein Wohnzimmer mit Kochnische und ein Esszimmer mit Zugang zur Terrasse.
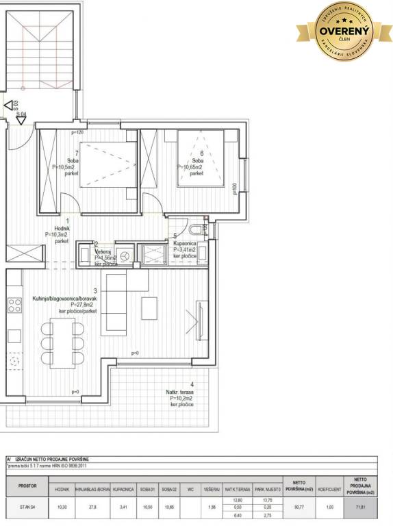
Wohnung S4 – 1. Obergeschoss. Wohnfläche 64,22 m² + Terrasse 12,80 m².
Die Wohnung verfügt über einen Eingangsbereich, zwei Schlafzimmer, ein Badezimmer mit Dusche und WC, einen Hauswirtschaftsraum/Waschraum sowie ein Wohnzimmer mit Kochnische und ein Esszimmer mit Zugang zur Terrasse.
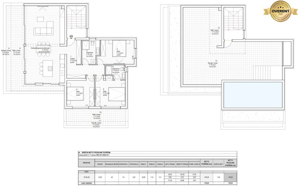
Wohnung S5 – 2. Obergeschoss. Fläche 105,71 m² + Terrasse vom Wohnzimmer aus zugänglich (25,43 m²) + zweite Terrasse von zwei Schlafzimmern aus zugänglich (14,67 m²) + Dachterrasse mit Pool (105,95 m²).
Die Wohnung verfügt über einen Eingangsbereich, drei Schlafzimmer, zwei Badezimmer (eines davon ist Teil eines Schlafzimmers) sowie ein Wohnzimmer mit Kochnische und ein Esszimmer.
Ausstattung: Wasser, Strom, Kläranlage
Kaufpreise:
Wohnung S1 = 364.000,- EUR
Wohnung S2 = 368.000,- EUR
Wohnung S3 = 315.000,- EUR
Wohnung S4 = 324.000,- EUR
Wohnung S5 = 792.000,- EUR
+ Zuzüglich trägt der Käufer die Kosten für Makler- und Rechtsdienstleistungen (einschließlich der Erstellung der Rechtsdokumente, Übersetzungsdienste und Notargebühren) in Höhe von 3 % des Kaufpreises.
Weitere Immobilienangebote in Kroatien finden Sie auf unserer Website.
Bei Interesse an einer Besichtigung kontaktieren Sie uns bitte:
+421.911.201.211, +385.99.8431.210,
amaxades.reality@gmail.com
Detailangaben:
1/Obergeschoss
2
3
71 m²
Alleinbesitz
aktiv
separiert
ja
eigenes - elektrisch
10 m²
eigenes/reserviertes
Ziegel
ja
ja
nein
Kunststoff
+421 911 201 211
Kroatien
Sukošan
Sukošan
Alleinbesitz
3-Zimmer-Wohnung - Neubau
Kaufen
- 13. 1. 2026 19:43
- Anfrage senden
- Das Angebot an Email verschicken
- Ein Besichtigungstermin vereinbaren
- Das Angebot drucken
Lage auf der Karte:
Für weitere Informationen kontaktieren Sie:
AMAXADES REALITY
Immobilienmakler


Telefon: +421 911 201 211
E-mail: amaxades.reality@gmail.com
AMAXADES s.r.o.
Pivovarská 7
NITRA, SLOVAKIA,
SK-94901
Telefon: +421 911 201 211, +421.911.400.211
Mobil: +421 911 201 211, +421.911.400.211, +385.99.8431.210,
E-mail: amaxades.reality@gmail.com
Web: www.amaxades-reality.sk
3-Zimmer-Wohnung / Sukošan / 3-Zimmer-Wohnung Sukošan Kaufen



















