- Immobilienkauf
- 3-Zimmer-Wohnung
- KROATIEN - 3 und 4 Zimmer Wohnunge, Haus D - Kožino, Zadar
KROATIEN - 3 und 4 Zimmer Wohnunge, Haus D - Kožino, Zadar
Alle Bilder zeigen (11 Bilder) RB23-1994-97,
Die Immobilienagentur AMAXADES REALITY bietet Wohnungen in einem neu gebauten Apartmenthaus im Dorf Kožino in der Nähe von Zadar zum Verkauf an.
Das luxuriöse und moderne Apartmenthaus liegt in einem ruhigen Teil von Kožina, nur 200 m vom Meer und 400 m vom Strand entfernt und verfügt über einen freien Blick auf das Meer. Zwei Mehrfamilienhäuser sind im Bau. Es gibt jeweils 4 Wohnungen.
Die Häuser werden nach einem hohen Qualitätsstandard gebaut. Zum Einsatz kommt eine hochwertige Ausstattung wie einbruchhemmende Türen, Dreikammer-Aluminiumtüren und -Fenster mit elektrischen Jalousien, Wärmepumpen mit Fußbodenheizung in allen Räumen sowie erstklassige Keramik- und Parkettböden.
Haus D:
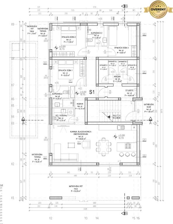
Wohnung DS1 – Erdgeschoss. Die Fläche der Wohnung beträgt 105,84 m2 + eine Terrasse von 16,05 m2 und ein Garten, in dem sich ein Swimmingpool mit einer Fläche von 20 m2 befindet.
Aufteilung: Eingangshalle, Flur, drei Schlafzimmer, zwei Badezimmer, WC mit Waschküche, Küche mit Esszimmer und Wohnzimmer mit Zugang zur Terrasse und zum Garten mit Swimmingpool.
Zur Wohnung gehören außerdem ein Keller mit einer Fläche von 2,40 m2 und zwei Parkplätze.
Wohnung DS2 - erster Stock. Die Fläche der Wohnung beträgt 67,80 m2 + Terrasse 14,20 m2.
Aufteilung: Eingangshalle, Flur, zwei Schlafzimmer, Badezimmer, Toilette und Waschküche, Küche mit Esszimmer und Wohnzimmer mit Zugang zur Terrasse.
Zur Wohnung gehören außerdem ein Keller mit einer Fläche von 1,40 m2 und zwei Parkplätze.
Wohnung DS3 – erster Stock. Die Fläche der Wohnung beträgt 67,80 m2 + Terrasse 14,20 m2.
Aufteilung: Eingangshalle, Flur, zwei Schlafzimmer, Badezimmer, Toilette und Waschküche, Küche mit Esszimmer und Wohnzimmer mit Zugang zur Terrasse.
Zur Wohnung gehören außerdem ein Keller mit einer Fläche von 1,40 m2 und zwei Parkplätze.
Wohnung DS4 - zweiter Stock. Die Fläche der Wohnung beträgt 114 m2 + eine Terrasse von 14,20 m2 und eine zweite Terrasse von 44,55 m2. Zur Wohnung gehört außerdem eine Dachterrasse mit einer Fläche von 180 m2 mit wunderschönem Blick auf das Meer und die Inseln.
Aufteilung: Eingangshalle, Flur, drei Schlafzimmer, zwei Badezimmer, WC, Waschküche, Küche mit Esszimmer und Wohnzimmer mit Zugang zur Terrasse. Eine Innentreppe führt zur Dachterrasse.
Zur Wohnung gehören außerdem ein Keller mit einer Fläche von 3,45 m2 und zwei Parkplätze.
Der Verkaufspreis der Wohnung DS1 beträgt 562.002 EUR.
Der Verkaufspreis der Wohnung DS2 beträgt 370.230 EUR.
Der Verkaufspreis der Wohnung DS3 beträgt 370.230 EUR.
Der Verkaufspreis der Wohnung DS4 beträgt 1.080.000 EUR.
+ Immobilien- und Rechtsdienstleistungen einschließlich Rechtsdokumenten, Übersetzungsdiensten und Notargebühren.
Neben Haus D befindet sich das Apartmenthaus C im Bau – kontaktieren Sie uns für Informationen zu verfügbaren Wohnungen und Verkaufspreisen im Haus C.
Wenn Sie Interesse an einer Besichtigung der Immobilie haben, kontaktieren Sie uns bitte:
Mobil: +421.911.201.211, +385.99.8431.210,
E-Mail: amaxades.reality@gmail.com
Detailangaben:
1
2
3
83.4 m²
67.8 m²
Unternehmenseigentum
aktiv
ja
ja
eigenes - elektrisch
14.20 m²
1.40 m²
ja
eigenes/reserviertes
Ziegel
ja
Aluminium
+421 911 201 211
Kroatien
Zadar
Kožino
Unternehmenseigentum
3-Zimmer-Wohnung - Neubau
Kaufen
- 13. 12. 2024 17:51
- Anfrage senden
- Das Angebot an Email verschicken
- Ein Besichtigungstermin vereinbaren
- Das Angebot drucken
Lage auf der Karte:
Für weitere Informationen kontaktieren Sie:
AMAXADES REALITY
Immobilienmakler


Telefon: +421 911 201 211
E-mail: amaxades.reality@gmail.com
AMAXADES s.r.o.
Pivovarská 7
NITRA, SLOVAKIA,
SK-94901
Telefon: +421 911 201 211, +421.911.400.211
Mobil: +421 911 201 211, +421.911.400.211, +385.99.8431.210,
E-mail: amaxades.reality@gmail.com
Web: www.amaxades-reality.sk
















